•Notícia
L’Escola Tècnica Superior d’Enginyeria Industrial de Barcelona de la UPC amplia i millora els seus espais
L’Escola Tècnica Superior d’Enginyeria Industrial de Barcelona (ETSEIB), emplaçada a l’avinguda Diagonal, 647, inicia amb el 2006 un procés de renovació arquitectònica per adequar les seves instal·lacions a les funcions actuals i les futures. El resultat serà la construcció de dos nous edificis i la rehabilitació dels pavellons existents. El cost total de l’obra és de 54 milions d’euros, que finançarà el Departament d’Universitats, Recerca i Societat de la Informació (DURSI) de la Generalitat de Catalunya. Una exposició a l’Aula Capella de la mateixa Escola recull en plànols, maquetes i fotografies l’explicació del projecte que es realitzarà a partir dels pròxims mesos.
Enguany, l’Escola Tècnica Superior d’Enginyeria Industrial de Barcelona (ETSEIB) s’endinsen en un procés de modernització arquitectònica amb la construcció de dos nous edificis i la rehabilitació dels pavellons existents. Aquesta modernització dels espais existents permetrà abordar les deficiències de tipus funcional, estructural i de seguretat actuals, amb una gran actuació arquitectònica, i adequar-los, així, a les funcions actuals i a les necessitats futures. L’objectiu és redissenyar el conjunt de l’escola i aconseguir la integració de tots els sistemes de subministrament d’energia i de comunicacions a la nova estructura.
Per presentar el projecte, l’ETSEIB ha organitzat una exposició a l’Aula Capella de l’Escola, que es pot visitar des de l’1 de febrer i fins al dia 24. La mostra, que porta el títol Recinte ETSEIB. Pla d’Actuacions arquitectòniques, exposa els plànols i les maquetes dels projectes que es realitzaran a partir dels propers mesos, així com una col·lecció de fotografies de la construcció de l’edifici actual i dels emplaçaments que ha tingut l’Escola al llarg de la seva història.
La remodelació del recinte de l’ETSEIB respon a la voluntat d’integrar els edificis en el teixit urbà i social de la ciutat, tenint en compte els criteris mediambientals. Així, el projecte respon als criteris de sostenibilitat que la UPC estableix per al disseny, la construcció i l’explotació de tots els seus edificis.
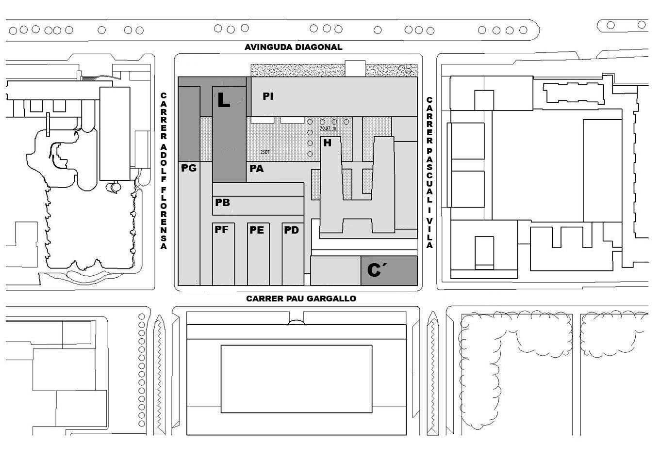
El primer conjunt edificatori (L) es construirà a la cantonada de l’avinguda Diagonal amb el carrer d’Adolf Florensa, i ocuparà la zona que actualment es destina a l’aparcament de l’Escola. El projecte, realitzat per l’arquitecte Josep Lluís Mateo i l’enginyeria IDOM, planteja, per una banda, l’allargament dels pavellons I i G fins a la cantonada esmentada, amb igual fondària i alçària. I per l’altra, la construcció d’un nou edifici de volumetria similar al de l’Escola Tècnica Superior d’Arquitectura de Barcelona, ETSAB, anomenat Segarra i que es troba a l’illa veïna.
El projecte també proposa reactivar el pati interior de l’ETSEIB i crear una àgora que actuï com a punt de trobada i d’intercanvi de tot el centre. Al voltant d’aquest nou pati se situaran les botigues, la cafeteria, la zona d’estudiants i la resta d’espais comuns, com la sala d’exposicions i l’auditori, per crear ambient ciutadà.
La façana del nou edifici tindrà un acabament de pedra ventilada (amb una mínima separació amb la paret), que permetrà que l’edifici s’aïlli de l’exterior i evitarà l’escalfament de la infraestructura. L’edifici també tindrà col·lectors solars que escalfaran l’aigua sanitària i un recol•lector de l’aigua de la pluja que s’utilitzarà per regar i per als sanitaris.
En l’àmbit de les fonts de producció d’energia, els arquitectes instal•laran una bomba de calor que multiplica per cinc vegades el seu rendiment, amb la qual cosa s’aconseguirà un baix consum i un alta eficiència energètica. I en el cas de les instal·lacions, es gestionaran de forma centralitzada per racionalitzar el consum.
El conjunt tindrà un total de 20.000 m2 construïts, amb planta baixa, set pisos i dues plantes de soterrani. La nova edificació disposarà d’àmbits per a departaments, aules i seminaris, aules informàtiques, sales d’estudi i biblioteca, entre d’altres. Es preveu que les obres s’iniciïn a mitjan 2006 i que durin dos anys i mig.
La remodelació també preveu la construcció d’un segon edifici (C’) a l’espai generat per l’enderroc del reactor nuclear Argos, a la cantonada dels carrers Pau Gargallo i Pascual i Vila. Aquesta nova construcció, projectada per l’equip d’arquitectes Pere Joan Ravetllat i Carme Ribas, tindrà 2.130 m2, planta baixa i tres pisos, i ha de funcionar connectat a cada planta amb l’edifici C. D’aquesta manera, ambdós immobles integraran i compliran d’una manera global la normativa d’evacuació i protecció contra incendis.
Les façanes d’aquest nou edifici estaran recobertes de lames de vidre transparent, anomenades brise-soleil, que tindran l’orientació adequada per protegir als usuaris de l’edifici de l’impacte solar sense perdre visibilitat. A més, aquest sistema de lames evita l’escalfament solar a l’estiu i propicia la llum i la calor als mesos d’hivern.
L’edifici també té pannells solars per escalfar l’aigua calenta sanitària i un sistema de xemeneies que fan circular i expulsar l’aire calenta. L’espai intern de l’edifici s’estructura sense columnes per utilitzar-lo segons les necessitats acadèmiques i de recerca.
Les obres duraran divuit mesos i s’iniciaran pròximament. Les dues noves edificacions (L i C’) tindran una composició modular que, d’acord amb els usos previstos, farà possible diversos sistemes de funcionament i variacions futures.
La renovació del recinte també proposa la rehabilitació dels pavellons existents a l’Escola (A, B, C, D, E, F i G, així com la part baixa d’H) per adaptar-los a les noves necessitats funcionals i a la normativa vigent. El projecte, que realitza l’empresa Master Enginyeria Arquitectura, suposa no només la rehabilitació estructural dels pavellons, sinó també la planificació i la gestió de tots els trasllats dels departaments implicats, així com la integració de totes les infraestructures (subministraments energètics i de comunicacions) a l’estructura general de l’Escola.
La superfície total d’intervenció s’estima entre 18.000 m2 i 20.000 m2. Les obres començaran al pavelló E a principis d’estiu, tindran una durada de sis mesos i es preveu la construcció d’espais temporals per reubicar el personal i l’equipament dels departaments traslladats. La rehabilitació de la resta de pavellons es farà de forma consecutiva, intentant interferir el mínim possible en l’activitat acadèmica general.
El cost total de l’obra és de 54 milions d’euros, que finançarà el Departament d’Universitats, Recerca i Societat de la Informació de la Generalitat de Catalunya a través del Pla Pluriennal d’Inversions Universitàries i assumint els retorns dels ajuts per a Parcs Científics i Tecnològics del Ministeri d’Educació i Ciència.
Segueix-nos a Twitter


